This home was custom designed and built by Inge Architecture.
The exterior is delineated with craftsman details of exposed rafters and angular wood, while the inside flows with a modern open floor plan downstairs and all the bedrooms upstairs.
Custom country home design for a young thriving family.
This custom home was designed for a specific lot in Grapevine. Existing trees and narrow site conditions help shape the unique layout of this house which takes advantage of spectacular views. Sure to be a favorite gathering space for many years to come, this home is currently under construction ! (11/18/16)
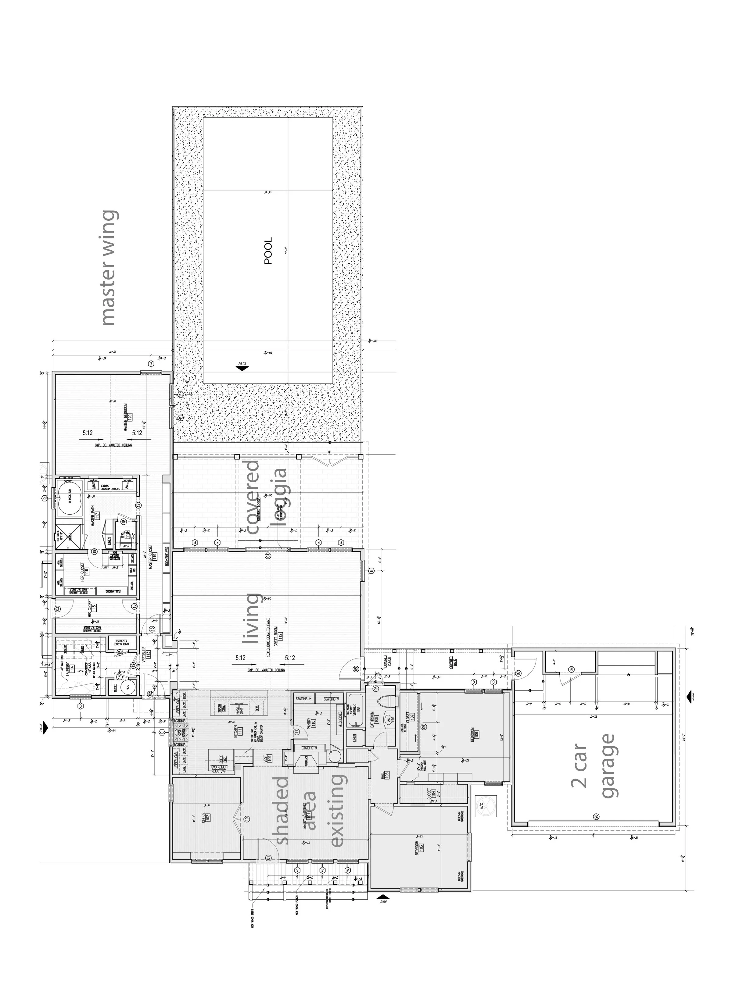
This custom home is a large addition and complete remodel to an quaint 1940's house. Keeping with the charm of the home, this addition keeps a simple palette of materials and sprawls across the large 1 acre lot which is situated in the heart of the city. A true country experience with the convenience of the city, this oasis will make you feel right at home.
This custom outdoor living area was designed and built for a wonderful Fort Worth family. Determined to have the most enjoyable and streamlined outdoor entertainment area, this space captures everything in a small footprint for the greatest experience.
This is the completed product ready for use. Working closely with the client we fit in each piece they wanted and made modifications along the way to make sure it was just right.
Usually in custom built project changes need to be made along the way, we make sure to provide all the drawings and visuals you need to move forward with a decision in the middle of a project as well !
Residential carport design
Design by others - 3d model & rendering by Inge Architecture
Exploration with digital models and renderings
Digital exuberance
Museum design based in the desert. It informs visitors on the local ecosystem especially water capture and resourcefullness.
These designs by Inge were explored through building physical models. A time honored and valuable tradition, a hand built model is a great asset to any project. All designs by Inge unless noted otherwise.
Competition Design. Nature center on Joe Pool Lake